Chief Architect Training In Denver, CO November 5-8, 2018

Discover the right way to use Chief Architect to get your plans, 3D models, renderings and construction details completed in less time and, with more detail.

Mastering Your Chief Software!

  • Discover How To Draw Plans Faster
  • See How Using Templates Saves Time
  • Learn The “Best Practices” For Using Chief
  • Get Answers To Troubling Questions
  • Master Chief In Days, Not Years

Enroll Now, Space is Limited - Classes Start In:

00

DAYS

00

HOURS

00

MINS

00

SECS

Finally, An Easy Way To Learn The Right Way To Use Chief Architect!

Chief Architect
Training Classes

If you're struggling to get the results you want from Chief Architect we're here to help.

In these classes you'll learn how to draw plans faster, create more accurate and detailed 3D models, use the 2D CAD tools and assemble great working drawings using the layout.

These courses are geared toward users that want to get a better understanding of the "Best Practices" of what the program can do.

Choose The Days That Works Best For You:

Days 1 & 2: Introductory & intermediate training to discover the right way to use Chief while creating your plans, 3D models, layouts & more. 

Days 3 & 4: Discover the Power of Templates while assembling a plan on the layout. We'll then dig deep into the more advanced functions of Chief.

All 4 Days: Attend all four days to get the biggest impact!

Days 1 & 2: Discovering Best Practices of Chief Architect

This class is for the beginner and intermediate users of Chief who want to learn the right way to setup and use the many functions within the program and discover time tested and proven techniques to draw plans faster

Introduction To Chief Architect (2-Hour Video)

Those attending this class will be required to review an intorductory video to gain a better understanding of the basic layout and functionality of Chief. On completion of this video you'll have the basic understanding of Chief necessary to attend this class. This video will cover the following:

  • Overview of the program: Plan Layout, Modeling, Rendering, 2D CAD, Layout
  • General Items: Screen layouts, Toolbars, Preferences, and other quick setup items. 
  • Keystrokes and Menus: Basic Shortcut and keystrokes
  • Saving plans, Archives, Backups and other storage options
  • 2D CAD Tools: Discover some of the basic CAD tools and how they work 
  • Layout Techniques: Layout walls, dimensions, stairs, windows, doors and cabinets.
  • Templates: Get the download and learn template basics
  • 3D Model: Creating levels and adjusting floors, ceiling heights & stairs 
  • Roofs: Concepts of how to add roofs to your plan 
  • Cameras: Review of the different Chief Cameras 
  • Layout pages: Adding views to your layout pages 

Day One - The System & The Model
Monday, 11-5-2018, 8:30 AM - 5:30 PM

The focus of this class will be to help you gain a clear understanding of the best way to create a plan using Chief Architect using a time tested, systematized approach in your design process.

  • Introduction and Overview of Chief Architect
  • Opening your New Plan Template. How templates work 

  • Review the "Best Practices" for completing a plan
  • Basic Keystrokes and Mouse Functions
  • Using and understanding the 2D CAD function in Chief
  • Dimensioning the different views on your plan
  • Proper way to create & lay out walls, pony walls & rooms
  • Adding Garage rooms
  • Adding Decks and Porches
  • Creating floors and more accurate models including foundations
  • Adding, positioning and grouping windows and doors
  • Simple methods for adding various types of stairs
  • Using the automatic and manual roof tools
  • Last hour of the day will be for review and Q&A

Day Two - Enhance & Put It All Together
Tuesday, 11-6-2018, 8:30 AM - 5:30 PM

Discover how to add more detail to your model including roofs, cabinets and more as you get your plan detailed and ready for creating the working drawings using the layout. 

  • Continuation of roofs. How to create any roof manually
  • How to quickly create a 1-1/2 story model
  • Adding dormers and other roof items
  • Setting up and creating a cabinet layout and plan
  • Using the bonus library to create bathrooms & showers
  • Creating and using slabs and molding polylines
  • Creating and using symbols and images
  • Adding cameras and using the rendering tools
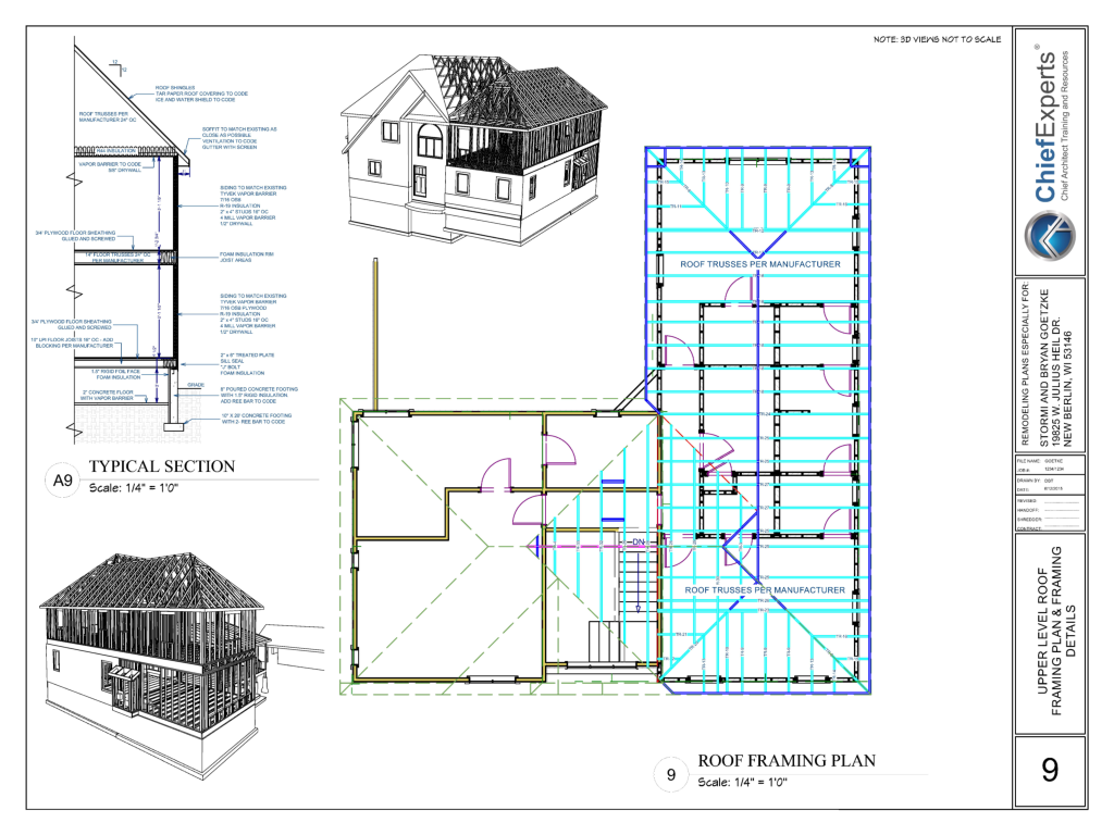
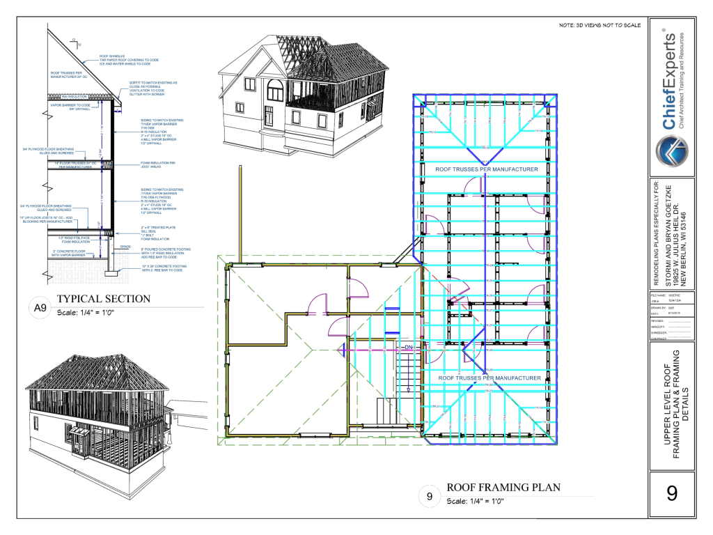
  • Adding Framing and creating cross sections
  • Introduction to layers, layer sets, and annotations
  • Assembling your views using the layout pages
  • Printing options
  • Last hour of the day will be for review and Q&A
ENROLL NOW

Days 3 & 4: Templates, Working Drawings & Advanced Features

If you've been using Chief for a while, this class will build on the intermediate training and help you increase your speed and accuracy as well as help you understand some of the more advanced tools in the program.

Template & Sample File Downloads

In this class you'll work with the supplied templates and samples to gain a clear understanding of how templates can save you time in the creation of your plans. Watch the included video that will explain how to get the downloads and have them ready for class.

Day Three - The Power Of Templates
Wednesday, 11-7-2018, 8:30 AM - 5:30 PM

If you've been working with Chief for a while, you know how frustrating it is to waste time doing the same things over and over. In this class, you’ll discover many techniques that will help you save time while gaining a better understanding of how templates work while we create a set of plans.

You’ll discover many simple techniques that you can use to assemble your project plans and working docs quickly and accurately. 

Note: For those that participated in the intermediate class, you will be using the plan you drew in that class. Otherwise, you’ll receive a sample plan we'll provide for this class.

  • Downloading and saving the supplied templates and sample plan
  • Overview of the Plan template and setting defaults
  • Overview of the Layout template and it’s relationship to the plan
  • Using the Project Browser and Saved Plan Views
  • How pages are added and customized in the Layout
  • Master Borders and Macros used in layouts
  • Adding the different types of View Ports to the layout
  • Scale and page size options for layouts
  • Automating linking and callouts on the layout
  • Setting up, customizing and using annotations and text styles
  • Creating and customizing layers and layer sets
  • Using Saved Plan Views effectively
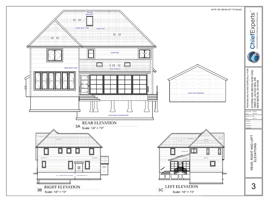
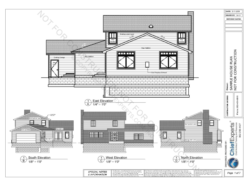
  • Creating and Detailing plan elevations
  • Using CAD Details
  • Creating libraries of items used regularly in your plans
  • Printing setup and options
  • Last hour of the day will be for Q&A

Day Four - Advanced Topics
Thursday, 11-8-2018, 8:30 AM - 5:30 PM

In this class we’ll dive into areas of Chief Architect that will help you get a more in-depth understanding of what a powerful CAD software Chief is. From advanced 2D CAD techniques and modeling functions, you’ll discover how to do much more than you ever thought possible.

Attendees of this class should have a good working knowledge of Chief Architect. This day will be very fluid as we go though as many of the topics as possible that are listed below. Be prepared to learn a lot!

Here are some of the popular topics we'll pick from for this class. 

  • Toolbars: Customizing and creating your specialty toolbars
  • Productivity Tips: Shortcuts, Mouse, Keystrokes, Preferences, Defaults
  • 2D CAD: Concentric, Jump, Arcs, Edit Area, Stretch, Transform Replicate, Arrays, Offset
  • Molding Lines & Slabs: Creating custom 3D elements for your projects
  • Custom 3D: Detailing elevations and 3D views with 2D and 3D elements
  • Tracing Over Pictures & PDF: How to accurately Import, scale & trace over images
  • Plot Plans: Creating Plan Footprints with Surveys using the tracing method
  • Surveys: Using coordinates to create surveys
  • Terrain: Creating 3D terrain models with roads, sidewalks, retaining walls, and more
  • Rendering: Creating high-quality renderings and other 3D Views
  • Framing: Adding 3D framing and trusses to your plan
  • Framing: How to do framing for a remodeling plan
  • Libraries: Creating custom libraries that will increase productivity
  • Foundations: Creating Pier footings, stem walls, pony walls and more
  • Graphics: Customizing and creating materials and adding/using graphics
  • Timber Frame: Creating pole barns and other timber frame structures
  • Kitchen and Bath: Tips for faster layout of kitchens and baths
  • Schedules: Customizing and Adding schedules to your plans
  • Roofs: Creating complex roofs, dormers, saddles, vaulted ceilings and more
  • Stairs: Adding and customizing more complex stair systems
  • As-Built Plans: Techniques used to draw existing structures
  • Macros: Overview and how they work in Chief
  • Save-As Templates: Using old plans for new templates
  • Page Sizes: Creating different page sizes for your drawings
  • Elevations & Sections: Tips for adding more detail automatically and manually
  • Symbols: Creating your own symbols and libraries
  • Material Lists: How to get more accurate lists
  • Plan Options: How to show different options in the same plan
  • Selling Your Services: How to get paid more for your plans
  • Last hour of the day will be for review and Q&A
ENROLL NOW

Class Will Be Held In This Modern Urban Sanctuary, A Beautifully Restored Church

Location & Times

Modern Urban Sanctuary
1725 East 30th St.
Denver CO 80205
Dan's Ph: 952-451-9911
Google Map - Property Info

7:30 – 8:30 Continental Breakfast
8:30 – 12:00 Morning Session
12:00 – 1:00 Lunch is Served
1:00 – 4:30 Afternoon Session
4:30 – 5:30 General Discussion (Optional)

Water, coffee, tea, soda and snacks available throughout the day. 15-minute morning and afternoon breaks

Need A Place To Stay While You're In Denver?

We have four private bedrooms available in this 6-bedroom, 7-bathroom modern urban sanctuary for anyone looking for a place to stay during the class. The rooms are available from Sunday, November 4th through Friday, November 9th. Your stay includes food and beverages.

Reserved for Carl S.

Reserved for Dennis

Reserved for Chris

Reserved for Rick E.

Chief is an Awesome Communication Tool

Hi Fellow Chief Architect Enthusiast,

For over 25 years I've been using Chief Architect to draw plans for homeowners and contractors and have also had the privilege of teaching 1000's of fantastic people the best ways to use Chief Architect. 

It's gratifying to watch the transformations that occur when someone becomes fluent with Chief and learns how to use it to create amazing plans. 

At Chief Experts Academy we’ve been hard at work creating a new training format where we’ll help you’ll discover how to use the many features of the program while progressing through the creation of an actual plan in a streamlined and systematized approach. 

Using the new Plan and Layout templates we’ve developed that you will receive as part of this course, you’ll instantly discover how you can save tons of time on each project that you design with Chief. 

These templates are optimized to take advantage of the built-in functions of the program, so you don’t have to waste time to make adjustments to layers, layer sets, dimensions, text, defaults and other items each time you start a plan. They’re already set up for you. 

With 20 years of contracting and 25+ years of design and Chief Architect experience, I’ve condensed the most important things you need to know about Chief Architect into training classes that focus on helping you master the program and the process of creating a plan as fast as possible using the “Best Practices” approach. 

I look forward to seeing you in my classes!  

To your success, 

Dan Baumann, Chief Experts Academy

Your Instructors

Dan Baumann

President Chief Experts Academy

With more than 25 years of experience using and teaching Chief Architect, Dan is highly qualified to teach you the best practices needed to complete your building plans and models using this software. His 20 years of experience as a remodeling contractor also give him the insights into what it takes to run a successful design-build construction company.

Dan's passion for helping you learn how to maximize the compensation you receive for your design services are what they should be to ensure that your design sales become the profit center you deserve for your business.

John Schrader

President, John Schrader Construction

John has been involved in the residential remodeling and building industry for 33 years and has been using Chief Architect in his business for over 12 years.

John will assist and share his passion and insights into how Chief works for him and how you can use it to improve your business. 

Testimonials

What Others Are Saying About These Events

This short clip was created for the 2017 Orlando International Builders Show promotion and it features a few of the attendees along with Dan. 

"There is no better way to go about training. There's no better way to go about the comradery, the networking. This is the premier way to attend anything having to do with training, conferences, whatever - and in this case, Chief Architect. It's fantastic."

Kevin Transue, CHC Creative Remodeling

 

"Dan, ...you are a gifted teacher and big soul. I am grateful for the week spent under your guidance and am inspired that my tired old brain will actually learn this program now. I look forward to working with you by phone and in person in the coming months/years..... The students:.... again, I feel so lucky to have spent this time with each of you. I appreciated the camaraderie and help from those of you who actually understood the program, the time cooking and eating together, the discussion of personal/world views in a respectful setting, and the overall goodness that was present in this group. It was a special time that I will remember for a long time."

Jonathan Mills
Mills Builders

"To all of the Gang - You inspired me - I decided to keep on trying new things with Chief so I took my computer to a site measure yesterday and did the as-built drawing on site. I will need to get used to the extra time working on-site for a measure, but it worked out great. I realized, besides the benefit of being able to verify details as you are drawing, there is another benefit. I came back to my office with a drawing I could immediately start moving into design ideas while the inspiration from being in the actual spaces was still fresh. There was no lag time while I slogged through as-builts and then had to restart the creative part of the process. It will take some time to adjust to a measure taking longer, but I saved time over all and the process feels more fluid. Who knows what Dan will get us to try next!"

Margaret Griffith
Griffith Design

"I learned a lot and enjoyed meeting everyone there. Great bunch of folks, almost felt like being with a group of Texans. :-) The interaction during the fixing of meals, etc. was great and the help from those that were more advanced was appreciated."

Jim Aswell
Kingwood, TX

"It was a great week with lots of education in so many ways. Thanks Dan for a job well done and to all of my fellow class mates for a fun and relaxing environment. Think we should all consider a "Family" reunion to further our education sometime in the not too distant future. Thanks everyone!"

Kevin Kofron
Kofron Builders Inc.

" have taken several classes from Dan and I always learn new way of using the software to get more done is less time. All of his training is well worth the time, cost and effort. I will remain a client for years to come."

Debra Taylor Purvis
Design House, Inc.

"His ability to make the software do things is amazing. He helps us to think outside of the box in our design projects. If you're using Chief Architect software I strongly recommend working with Dan and all of his training."

Dennis Gehman
Gehman Custom Remodeling

"Dan had helped to give me a deep understanding of how Chief works. His classes are lively, entertaining and always very educational. I highly recommend all of the online and live training that Dan provides."

Kevin Transue
CHC Creative Remodeling

Enroll Now, Space Is Limited

Days 1 & 2 Discovering Best Practices Of Using Chief Architect, November 5-6, 2018

$697

2 - Day Best Practices Training Class

Class Member Site Access

Template Downloads

Q&A Each Day

2 - Post Event Webinars

Breakfast, Lunch & Snacks

1-Seat Remaining

REGISTER

Days 3 & 4 Templates, Working Drawings & Advanced Features November 7-8, 2018

$697

2 - Day Template & Advanced Training Classes

Class Member Site Access

Template Downloads

Q&A Each Day

2 - Post Event Webinars

Breakfast, Lunch & Snacks

1-Seat Remaining

REGISTER

All 4 - Days of Chief Architect Training November 5-8, 2018

$1,197

All 4 - Days, Best Practices, Templates and Advanced Chief Architect Training

Class Member Site Access

Template Downloads

Q&A Each Day

2 - Post Event Webinars

Breakfast, Lunch & Snacks

1-Seat Remaining

REGISTER

All 4 - Days of Chief Architect Training Plus Lodging & F&B for 5 - Nights November 4-9, 2018

$1697

All 4 - Days of Training

5 - Nights Lodging Plus F&B

Class Member Site Access

Template Downloads

Q&A Each Day

2 - Post Event Webinars

Breakfast, Lunch & Snacks

(0 of 4 Rooms Available)

Sold Out

Bonus - Two Post Event Webinars

Everyone that attends the classes in Denver can also attend the two live, private post event webinars. This will give you a chance to ask questions and get clarity after the classes. These webinars will be held on Tuesday, November 20th and November 27th from 3:00 - 4:30 CST.

Call Dan at 952-451-9911 with Questions & to Enroll

Enroll Now, Space is Limited - Classes Start In:

00

DAYS

00

HOURS

00

MINS

00

SECS

Q&A

Where are the training classes located? We'll be meeting in a former church that has been converted to a beautiful 6-bedroom, 7-bath Urban Sanctuary at 1725 East 30th St. Denver CO 80205
Google Map - Property Info

Do I have to bring my computer? Yes, bring your laptop or desktop. There will be plenty of power to go around.

Do I need to be on the latest version of Chief Architect? To avoid confusion during the class, we do insist that you have the latest version of Chief Architect X10 on your computer.

Is Food Included? Continental breakfast, lunch, snacks, and beverages will be provided during the training classes. If you're staying with us you will also be provided with dinner. 

Should I wait to Register? Registrations are accepted on a first come, first served basis and space is limited. When the seats are gone, they are gone!

I'm not from the area, can you recommend nearby hotels? If you need a place to stay we have 4 private bedrooms available at the house (Rooms at the house are Sold Out) where we will be doing the classes. Otherwise you can stay at any of the local hotels that you can find via google search.

Is there special pricing for additional people from the same company? Yes, additional people from the same company will receive a 30% discount for each additional person. Call Dan at 952-236-4427 to discuss the details and enroll.

Can I enroll someone from the same company in days 1 and 2 and a different person for days 3 and 4 using the 4-day discounted class link? No, the 4-day discounted class pricing can only be used for the same person attending all 4-days.

I've been using Chief for awhile and I sort of know my way around the program. Should I take the Templates and Advanced class? If you have not done any formal training or watched any training videos you should probably attend days 1 & 2. Don't let the title of the class fool you. Everyone, even intermediate and advanced users will learn a lot of new material in the first two days. It's packed with a lot of "Best Practice" information plus you'll also receive the new templates. If you're not sure please call Dan at 952-451-9911 to discuss the best options.

I'm proficient with Chief. Will the Best Practices class help me? Absolutely!  You will discover many new features in Chief, and you'll learn from someone that has spent his career using and learning how to use Chief more effectively. In fact, Dan continues to attend the Advanced classes in Coeur d'Alene each year and always comes away with many new ways to use this fantastic program. And he will be sharing many of those tips with his students in all of the classes.

What topics are being discussed in the training classes? General information for each course is provided above. Some of what's taught will be presented based on those that will be attending.

The list of topics for the Advanced class is long. How will we cover everything?

We won’t – This list it a checklist to use as part of a survey where participants of the class will vote on the top items they want to learn. The results of this survey will then be used to help us establish the advanced class curriculum.

Are there any other fees? Prices quoted include all taxes and fees for the classes. You need to provide your own travel and accommodations. (Unless you're staying with us)

What is the Cancellation Policy? If you need to cancel, you’ll receive a full refund up to 1-month before the event. After that "IF" we can sell your seat to someone else you'll get a full refund. Call Dan to discuss your situation if you need to cancel for some reason. You can always use the fees you paid for future training classes, other products at Chief Experts Academy or one on one training with Dan.

Why do you have two webinars after the event? To stay in touch and answer any questions you may have. If you can't attend the live webinar, they will be recorded.

What happens after I sign up? When you sign up, you will be enrolled in a members area at the Chief Experts Academy website just for this event. In this area, you will be able to ask questions, enroll for the webinars and access any handouts, downloads and recordings.

Have Other Questions? Contact Dan Baumann at dan@chiefexperts.com or call 952-236-4427 or 952-451-9911

Pictures From Past Events